Nyíregyháza, Fazekas János tér 18. 4. 38.
Bérlakáspályázat 2025/3 társasházi/szövetkezeti lakás
Ár
153 000 FtAlapterület
66 m2Szobák
2Bérlakáspályázat 2025/3 társasházi/szövetkezeti lakás
- Vármegye:Szabolcs-Szatmár-Bereg
- Ingatlan állapota:jó műszaki állapotú
- Építés éve:nincs megadva
- Komfort:összkomfort
- Épület szintjei:nincs megadva
- Telek mérete:nincs megadva
- Fűtés:távhő
- Tetőtér:nincs megadva
- Pince:nincs megadva
- Erkély:van
- Lift:nincs megadva
- Emelet:4
- Parkolás:nincs megadva
- Bútorozott:nem
- Költözhető:nincs megadva
Leírás
Leírás
Azonosító: 006743
Pályázható ingatlan jellemzői:
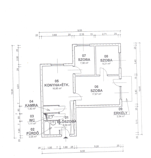
4400 Nyíregyháza, Fazekas János téren, 66 nm-es, jó műszaki állapotú, 1 + 2 félszoba szobás LAKÁS pályázható.
Helyiségek: előszoba, konyha, fürdőszoba, wc, szoba, erkély, 1 + 2 félszoba
/Lakások felszereltsége: az ingatlanok konyhabútorral, főzőkészülékkel felszereltek, a bérlemények további háztartási kis-, és nagygépekkel nem felszereltek. Az ingatlanok bútorozatlanul kerülnek átadásra./
BÉRLETI DÍJ: 153.000 Ft/hó
Közös költség: 9.925 Ft/hó.
Fűtése: távhő
Az ingatlanba beköltözők száma: max. 4 fő.
Minimum elvárt jövedelem: 565 500 Ft
A lakások előzetes regisztrációt követően, személyesen (maximum további 1 fő jelenlétében) megtekinthetőek az 1. számú mellékletben meghirdetett időpontokban.
Ingatlan megtekintésének napja: 2026.1.12. (A megtekintésre jelentkezés határideje: 2026.01.09.)
Az ingatlanok megtekintésére jelentkezés lezárult.
A megtekintésre a regisztrációs űrlapon a feltüntetett ingatlan és időpont kiválasztásával, név, e-mailcím és telefonszám megadásával lehet jelentkezni. (A regisztrációs űrlap során megadott adatok kezelésére a pályázat Adatkezelési Tájékoztatójában foglaltak irányadóak).
Hivatkozási szám: 006743
Fontos
Kapcsolat
Impresszum
MR Közösségi Lakásalap Közhasznú Nonprofit Korlátolt Felelősségű Társaság
1033 Budapest, Harrer Pál utca 3.
Adószám: 29254143-2-41
E-mail: ugyfelszolgalat@mrkl.hu

