Várpalota, Szabolcska M. utca 59.
Bérlakáspályázat 2026/1 társasházi/szövetkezeti lakás
Ár
112 000 FtAlapterület
69 m2Szobák
4Bérlakáspályázat 2026/1 társasházi/szövetkezeti lakás
- Vármegye:Veszprém
- Ingatlan állapota:jó műszaki állapotú
- Építés éve:nincs megadva
- Komfort:összkomfort
- Épület szintjei:4
- Telek mérete:nincs megadva
- Fűtés:távhő
- Tetőtér:nincs megadva
- Pince:nincs megadva
- Erkély:van
- Lift:nincs
- Emelet:földszint
- Parkolás:nincs megadva
- Bútorozott:nincs megadva
- Költözhető:nincs megadva
Leírás
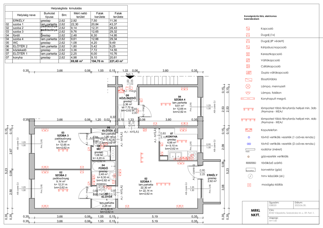
Azonosító: 038020
Pályázható ingatlan jellemzői:
Várpalota, Szabolcska M. utcában 69 nm-es, jó műszaki állapotú, 1 + 3 félszobás LAKÁS pályázható.
Helyiségek: előszoba, konyha, fürdőszoba, wc, 1 szoba, 3 félszoba, erkély
/Lakások felszereltsége: az ingatlanok konyhabútorral, főzőkészülékkel felszereltek, a bérlemények további háztartási kis-, és nagygépekkel nem felszereltek. Az ingatlanok bútorozatlanul kerülnek átadásra./
BÉRLETI DÍJ: 112.000 Ft/hó
Közös költség: 10 234 Ft/hó.
Fűtése: Távhő
Az ingatlanba beköltözők száma: max. 6 fő.
Minimum elvárt jövedelem: 393 000 Ft
A lakások előzetes regisztrációt követően, személyesen (maximum további 1 fő jelenlétében) megtekinthetőek az 1. számú mellékletben meghirdetett időpontokban.
Ingatlan megtekintésének napja: 2026.03.18. (A megtekintésre jelentkezés határideje: 2026.03.16.)
A megtekintésre a regisztrációs űrlapon a feltüntetett ingatlan és időpont kiválasztásával, név, e-mailcím és telefonszám megadásával lehet jelentkezni. (A regisztrációs űrlap során megadott adatok kezelésére a pályázat Adatkezelési Tájékoztatójában foglaltak irányadóak).
Hivatkozási szám: 038020
Fontos
Kapcsolat
Impresszum
MR Közösségi Lakásalap Közhasznú Nonprofit Korlátolt Felelősségű Társaság
1033 Budapest, Harrer Pál utca 3.
Adószám: 29254143-2-41
E-mail: ugyfelszolgalat@mrkl.hu

