TÉR 2 lakóház
- Vármegye:Hajdú-Bihar
- Ingatlan állapota:felújítandó
- Építés éve:nincs megadva
- Komfort:komfortos
- Épület szintjei:nincs megadva
- Telek mérete:1101 m2
- Fűtés:házközponti gázkazán
- Tetőtér:nincs megadva
- Pince:nincs megadva
- Erkély:nincs megadva
- Lift:nincs megadva
- Emelet:nincs megadva
- Parkolás:nincs megadva
- Bútorozott:nem
- Költözhető:felújítást követően
Leírás
Pályázható ingatlan jellemzői:
Kérjük, vegye figyelembe, hogy a lakóház felújítása az egyedi igények egyeztetése előreláthatóan 6-9 hónapot vesz igénybe.
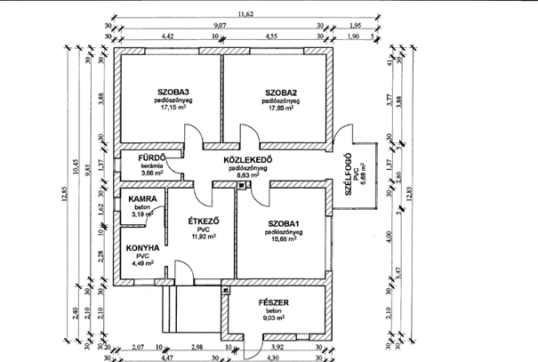
4130 Derecske Irinyi utca 11-1. szám alatti 97 m2-es, 3 szobás lakóház pályázható.
/Lakóház felszereltsége: az ingatlan konyhabútorral, tűzhellyel felszerelt, a bérlemény további háztartási kis-, és nagygépekkel nem rendelkezik./
BÉRLETI DÍJ: 104000 Ft
Az óvadék mértéke 1 havi bérleti díjnak megfelelő összeg.
Milyen speciális szükségletek mentén alakítható át az ingatlan?
Hallássérült, látássérült, értelmi fogyatékossággal élő, autizmus spektrumzavarban, mozgáskorlátozottságban érintett személyek szükségletei mentén. Az ingatlanra akkor tekintjük érvényesnek a pályázatot, amennyiben a pályázó a 7. sz. mellékletben a mozgássérült személy szükségletei mentén történő átalakítást (is) igényli.
Beköltözők maximális létszáma: 6 fő
Az ingatlan felújítási programban vesz részt, így megtekintésére a pályázat benyújtásáig nincs lehetőség.
A bérleti szerződés időtartama: 5 év határozott idő, mely kérés esetén 5 évvel hosszabbítható. További részleteket a pályázati kiírás és mellékletei tartalmaznak.
Az online felületen benyújtott pályázat -akkor minősül teljeskörűen benyújtottnak, amennyiben a pályázó kitöltve benyújtja a jelen felhívás 7.számú mellékletét képező, Speciális szükségletek felmérése nyomtatványt a pályázat benyújtására nyitva álló határidőn belül, a lakaspalyazat@mrkl.hu e-mail címre.
Az ingatlanra vonatkozó pályázatát az alábbi gombra kattintva tudja benyújtani:
Hivatkozási szám: 331064
Hivatkozási szám: 331064Fontos
Kapcsolat
Impresszum
MR Közösségi Lakásalap Közhasznú Nonprofit Korlátolt Felelősségű Társaság
1033 Budapest, Harrer Pál utca 3.
Adószám: 29254143-2-41
E-mail: ugyfelszolgalat@mrkl.hu
