TÉR lakóház
- Vármegye:Békés
- Ingatlan állapota:jó műszaki állapotú
- Építés éve:nincs megadva
- Komfort:összkomfort
- Épület szintjei:nincs megadva
- Telek mérete:619 m2
- Fűtés:gáz cirkó
- Tetőtér:nincs megadva
- Pince:nincs megadva
- Erkély:nincs
- Lift:nincs
- Emelet:nincs megadva
- Parkolás:nincs megadva
- Bútorozott:nem
- Költözhető:felújítást követően
Leírás
Pályázható ingatlan jellemzői:
Kérjük, vegye figyelembe, hogy a lakóház felújítása az egyedi igények egyeztetése után előreláthatóan 6-9 hónapot vesz igénybe.
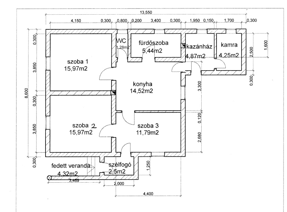
5630 Békés, Kodály Zoltán utca 16. lakóház 77 nm-es, 2,5 szobás, BÚTOROZATLAN HÁZ pályázható.
/Lakás felszereltsége: az ingatlan konyhabútorral, gáztűzhellyel felszerelt, a bérlemény további háztartási kis-, és nagygépekkel nem rendelkezik./
BÉRLETI DÍJ: 55 000 FT
Az óvadék mértéke 1 havi bérleti díjnak megfelelő összeg.
Milyen speciális szükségletek mentén alakítható át az ingatlan?
hallássérült, látássérült, értelmi fogyatékossággal élő, autizmus spektrumzavarban, mozgáskorlátozottságban érintett személyek szükségletei mentén. Az ingatlanra akkor tekintjük érvényesnek a pályázatot, amennyiben a pályázó a 7. sz. mellékletben a mozgássérült személy szükségletei mentén történő átalakítást (is) igényli.
Kauciófizetési kötelezettség nincs.
Beköltözők maximális létszáma: 4 fő
Az ingatlan 2025. 10. 29-én tekinthető meg személyesen (maximum további 1 fővel).
Időpontfoglalás szükséges a megadott időpont előtt minimum 2 nappal.
A foglalásra a feltüntetett ingatlan és időpont kiválasztásával, név, e-mail cím és telefonszám megadásával lehet jelentkezni.
Jelentkezés ingatlan megtekintésre - TÉR
A bérleti szerződés időtartama: 5 év határozott idő, mely kérés esetén 5 évvel hosszabbítható. További részleteket a pályázati kiírás és mellékletei tartalmaznak.
Az online felületen benyújtott pályázat akkor minősül teljeskörűen benyújtottnak, amennyiben a pályázó kitöltve benyújtja a jelen felhívás 7.számú mellékletét képező, Speciális szükségletek felmérése nyomtatványt a pályázat benyújtására nyitva álló határidőn belül, a lakaspalyazat@mrkl.hu e-mail címre.
Az ingatlanra vonatkozó pályázatát az alábbi gombra kattintva tudja benyújtani:
Hivatkozási szám: 023532Fontos
Kapcsolat
Impresszum
MR Közösségi Lakásalap Közhasznú Nonprofit Korlátolt Felelősségű Társaság
1033 Budapest, Harrer Pál utca 3.
Adószám: 29254143-2-41
E-mail: ugyfelszolgalat@mrkl.hu

